Lieber Leser,
unsere Seite finanziert sich durch Werbeeinnahmen und die deshalb angezeigten Werbebanner.
Helfen Sie uns, indem Sie Ihren Werbeblocker ausschalten.
Werbung
facebook twitter

Informationen rund um den Flughafen München

Werbung

Erding-City-Stadt-3-4Zi.ETW-EBK-Bezugsfrei-ca.106m²-TG auf Wunsch


Beschreibung:

Erding - Stadt - City moderne Eigentumswohnung in zentraler Lage Nähe Seniorenwohnheim und Bahnhof.

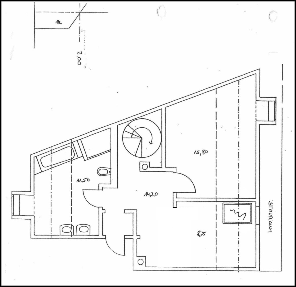
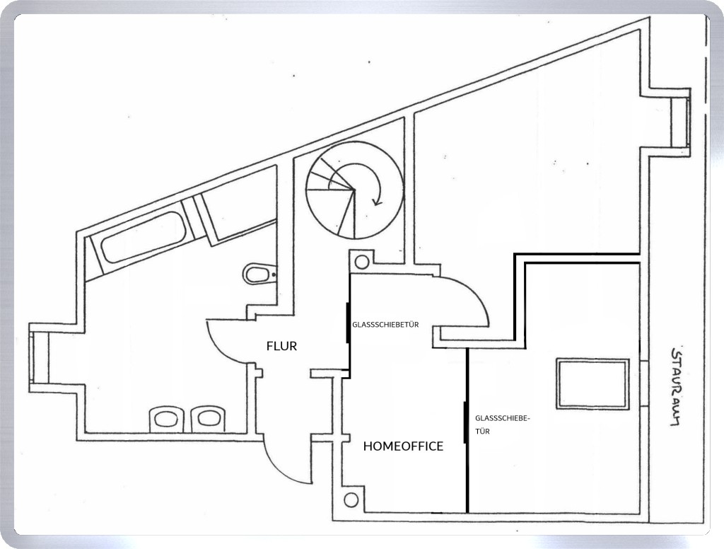
Die 3 Zi. bis (4 Zi. nach Umbau) Wohnung erstreckt sich über zwei Ebenen mit 2 Zugängen vom Treppenhaus aus und ist leicht erreichbar.

TOP: Zentrale Lage, auch gut vermietbar.
TOP: Wohnbereich mit Loggia, extra Küche, mit EBK
TOP: Badezimmer m. Wanne-Dusche, extra WC
TOP: Wohnanlage in zentraler Lage
TOP: mit Kaminanschluss für einen Holzofen
TOP: gemauerter Kellerraum
TOP: Zum Selbstbezug oder Kapitalanlage
TOP: Schöne Raumaufteilung und einen gemauerten Keller.
TOP: 2022 wurde ein neuer Fernwärmeanschluss verlegt, leider wurde der Energieausweis noch nicht angepasst.

Der Kaufpreis der Wohnung beträgt 429.000,-EUR.

Auf Wunsch kann noch zusätzlich ein TG Stellplatz (kein Duplex) erworben werden.

erste Ebene der Wohnung:

Eingangsbereich mit Flur, mit Zugang zum schönen Wohnbereich mit Wintergarten nach Westen. Eine Wohnküche mit EBK. Im Flurbereich ist ein separates WC. und eine Treppe in die zweite Ebene.

Die Zweite Ebene hat auch einen zusätzlich Zugang über das Treppenhaus (Möbeltransport). mit 2 Zimmer, (durch Umbau eventuell auf 3 Z. + Bad erweiterbar). ein gefliestes Badezimmer mit exklusiver Wanne, Glas Dusche, Fenster und WC. u. Waschmaschinenanschluss.

Über das Treppenhaus geht es zum Keller und zur Tiefgarage. ( ein Tiefgaragenplatz auf Wunsch zusätzlich erwerbbar)

Energiepass Art - Verbrauchsausweis
Energiebedarf - 120,90 kWh-(m²a)
Energieeffizienzklasse - D
Ausweis gültig bis - 05.09.2026
Baujahr Gebäude - 1985
Wesentliche Energieträger - Erdgas
Neue Heizung ab 2022.


Lage:
Kurze Wege in die Innenstadt oder zu Einkaufsmöglichkeiten und zur Erholung ist die Erdinger Therme zum Greifen nah.

Verkehrsgünstige Lage:
Ärztehaus, Schule, Kindergarten, S-Bahnhof, Einkaufszentrum in zentraler Lage

Freizeitangebot: Der Krontalerweiher in Erding ist ein sehr beliebtes Freizeitdomizil. Er bietet allen Sonnenanbetern, Wasserratten und Grillfreunden allerbeste Freizeitmöglichkeiten, unter anderem Minigolf.

Ausstattung:

Die Firma KREIPL-KELLNBERGER-IMMOBILIEN-GMBH sucht laufend Miet- und Verkaufsobjekte in jeder Größe. Auch für vorgemerkte Kunden. Schnelle diskrete Bearbeitung u. GÜNSTIGE PREISE.

Wir bieten kompetente Beratung u.Verkauf, gepaart mit 38 - jähriger Erfahrung und kostengünstige Konditionen.

Bei Interesse am Objekt oder wenn Sie eine Beratung zu Ihrer Immobilie wünschen, schreiben Sie uns eine kurze E-Mail an info@Kreipl-Kellnberger-Immobilien-GmbH.de (leider wegen Datenschutz notwendig) wir melden uns sofort bei Ihnen.






Details:

ObjektNr.: A1085
Objektart.: Wohnung
Angebotsart: Kauf
Nutzungsart: Wohnen

Ort: 85435 Erding

Kaufpreis: 429.000,00 €
Provision: 2,38% Käuferprovision inkl. MwSt. vom Kaufpreis


Wohnfläche: 106 m²
Zimmer: 4
Unterkellert: JA

Baujahr: 1985
Zentralheizung: Ja
Gasheizung: Ja
Tiefgarage: Ja
KabelSatTV: Ja
Wasch-/Trockenraum: Ja
Energiepass: Verbrauch
Energiepass Gültigkeit: 05.09.2026
Energieverbrauchskennwert: 120.9 kwh/(m2*a)
Energiepass Warmwasser: Ja





Anbieter:
Um diesen Bereich anzuzeigen, muss vorher den Cookies zugestimmt werden:
Cookie-Einstellungen
Kreipl-Kellnberger-Immobilien GmbH


Lange Zeile 26
Erding

Tel.: 08122 / 90 00 90
08122 / 90 01 92
E-Mail senden





Bilder:


Kooperationen


ED-live.de FS-live.de