Lieber Leser,
unsere Seite finanziert sich durch Werbeeinnahmen und die deshalb angezeigten Werbebanner.
Helfen Sie uns, indem Sie Ihren Werbeblocker ausschalten.
Werbung
facebook twitter

Informationen rund um den Flughafen München

Werbung

KREIPL-IMMO.DE -Moosburg- TOP renoviert m. Balk. Sichtofen, Stpl.


Beschreibung:

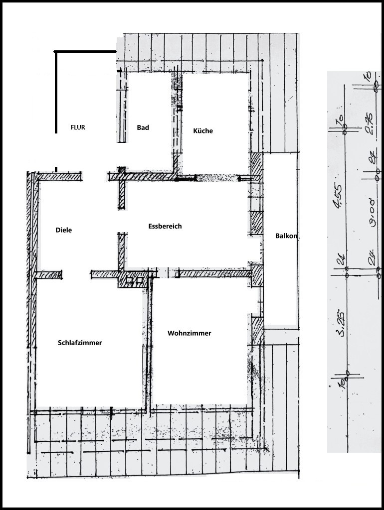
Moosburg - schöne TOP renovierte 2 Zi. mit Balkon, ca. 54 m² Wohnfläche.

Für Mietobjekte: Liebe Interessenten, jetzt auch aus Datenschutzgründen, bitte Anfragen nur noch per E-Mail. Erklärung - siehe nächste Spalte. Danke für Ihr Verständnis. Leider keine Haustiere.

TOP: Bezug ab sofort oder nach Vereinbarung
TOP: neue Boden und neue weiße Türen in der Wohnung
TOP: sehr schöne Aufteilung
TOP: zum Energiesparen-Holzofen m. Sichtfenster im Wohnzimmer
TOP: mit großem sonnigen Balkon
TOP: elektrische Nachtspeicheröfen die Kosten für die Heizung und Warmwasser rechnet der Mieter direkt mit dem Versorger ab.
TOP: KFZ-Stellplatz 30,-EUR mtl.
TOP: Nähe Bahnhof ideal zum pendeln

Wohnung hat einen schönen hellen Wohnbereich mit gemütlichen Holzofen und Zugang zum Balkon.

Die Wohnung hat einen großen Essbereich Wohnküche ist separat und hat auch einen großen Essbereich. Eine Einbauküche ist nicht vorhanden.

Das Badezimmer ist hell gefliest und mit einer Dusche und einem Fenster ausgestattet.

Eine geräumige Diele, die Platz für eine Garderobe bietet, befindet sich im Eingangsbereich der Wohnung. Hier ist auch noch ein Zugang zum zur Wohnung gehörenden Speicher. Der Speicher ist nur zum Lagern von Gegenständen.

Im Keller des Hauses ist für diese Wohnung auch ein Kellerabteil, sowie eine Waschküche mit dem Waschmaschinenanschluss.

Energiepass Art - Verbrauchsausweis
Energiebedarf - 194,58 kWh-(m²a)
Energieeffizienzklasse - F
Ausweis gültig bis - 06.07.2035
Baujahr Gebäude - 1980
Wesentliche Energieträger - Strom


Lage:

Schöne Lage in Moosburg.
in einem ruhigen Wohngebiet nähe Sportanlagen und dem Bahnhof.
Nähe Felder und Wiesen.

Ausstattung:

Nach Ihrer E-Mail-Anfrage wird Ihnen ein BEWERBUNGSBOGEN mit Begleittext für Mietobjekte zugesendet, ebenso kann es leider auch dazu kommen, dass Aufgrund der hohen Nachfrage eine Antwort oder die Versendung des Bewerbungsbogen nicht mehr möglich ist. Dafür möchte wir uns Entschuldigen. Da der Bewerbungsbogen zur Anfragenbearbeitung notwendig ist, bitten wir Sie deshalb, von telefonischen Anfragen u. persönlichen Besuchen abzusehen. Natürlich sind alle Angaben freiwillig. Vielen Dank für Ihr Verständnis. KREIPL-IMMOBILIEN sucht laufend Miet- und Verkaufsobjekte in jeder Größe für unsere vorgemerkten Kunden. Wir bieten kompetente Beratung, gepaart mit 38 -jähriger Erfahrung.





Details:

ObjektNr.: A1044
Objektart.: Wohnung
Angebotsart: Miete / Pacht
Nutzungsart: Wohnen

Ort: 85368 Moosburg

Kaltmiete: 650,00 €
Warmmiete: 700,00 €
Nebenkosten: 50,00 €

Kaution: 2.190,00 €

Freiplatz: 1 Stellplätze Preis: 30,00 €
Wohnfläche: 54 m²
Zimmer: 2
Stellplätze: 1
Unterkellert: JA

Baujahr: 1980
Zentralheizung: Ja
Elektroheizung: Ja
Freistellplatz: Ja
Energiepass: Verbrauch
Energiepass Gültigkeit: 06.07.2035
Energieverbrauchskennwert: 194.58 kwh/(m2*a)
Energiepass Warmwasser: Ja





Anbieter:
Um diesen Bereich anzuzeigen, muss vorher den Cookies zugestimmt werden:
Cookie-Einstellungen
Kreipl Immobilien


Lange Zeile 26
Erding

Tel.: 08122 / 90 00 90
08122 / 90 01 92
E-Mail senden





Bilder:


Kooperationen


ED-live.de FS-live.de