Lieber Leser,
unsere Seite finanziert sich durch Werbeeinnahmen und die deshalb angezeigten Werbebanner.
Helfen Sie uns, indem Sie Ihren Werbeblocker ausschalten.
Werbung
facebook twitter

Informationen rund um den Flughafen München

Werbung

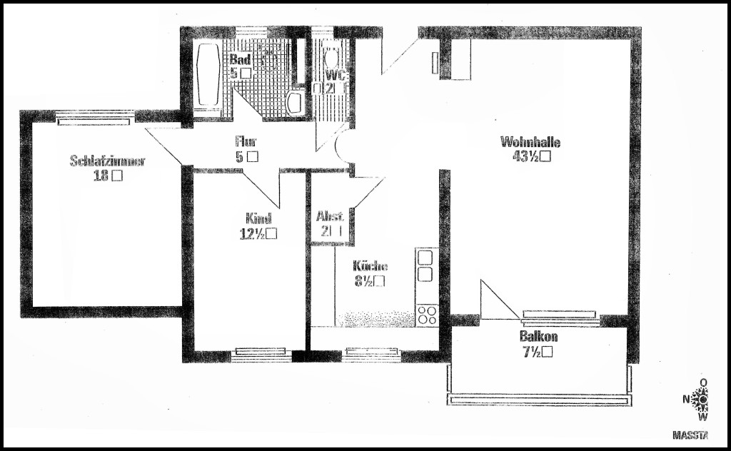
KREIPL-IMMO- Erding-SELBSTBEZUG- 3 Zi.ETW- Balk.super Aussicht


Beschreibung:

Erding schöne Lage, kurzer Weg zum S-Bahnhof Altenerding
Moderne Bezugsfreie 3 Zi. ETW. mit Westbalkon ca. 100 m² mit Lift u. ebenerdiger Zugang. ERBPACHTOBJEKT : Geringe Erbpacht ca. 31.- monatlich

TOP: 2020 renovierte sehr gepflegte Wohnung ohne Renovierungsrückstau
TOP: sehr viele Renovierungen/Erneuerungen am Haus
TOP: barrierefreier Zugang
TOP: schöner Wohnungsschnitt
TOP: mit Balkon und Weitsicht
TOP: NEUES Badezimmer 2020/ Türen, 2023 alle Heizkörper wurden erneuert
TOP: großer Gemeinschaftsgarten mit Kinderspielplatz
TOP: bezugsfrei nach Absprache
TOP: mit Lift im Haus
TOP: Besucherparkplätze
TOP: TG Stellplatz zzgl. 19.000EUR
TOP: kurze Wege ins Zentrum oder zur S-Bahn S2 Altenerding

Der große Wohnbereich mit ist gut geschnitten und hat Zugang zu dem großen sonnigen Westbalkon mit Markise.

Modernes neu und geschmackvoll gestaltetes Badezimmer. Separates WC.

Durch das Treppenhaus gelangt man in den zur Wohnung gehörenden Keller. Im Keller befinden sich auch mehrere Fahrradkeller und ein Waschraum mit Münzwaschmaschinen/-Trockner.

In der Anlage stehen ein Gemeinschaftsgarten mit Spielplatz für die Bewohner des Hauses zur Verfügung.

TOP: Geringe Erbpacht – Laufzeit des Erbpachtvertrages bis Ende 2072 mit
Verlängerungsoption um weitere 40 Jahre bis zum Jahr 2112.

Energiepass Art/ Verbrauchsausweis / Energiebedarf 69,6kWh-(m²a) /
Energieeffizienzklasse B / Ausweis gültig bis 27.02.2028/ Baujahr Gebäude 1975 /Wesentliche Energieträger Fernwärme

Lage:

Top Lage in Altenerding- S 2-Bahn, Busverbindungen, Supermärkte, kurzer Weg in das Erding Zentrum usw. In schöner gewachsener gepflegter Wohnlage mit großem Gemeinschaftsgarten.

Ausstattung:

KREIPL-IMMOBILIEN sucht laufend Miet- Pacht und Verkaufsobjekte in jeder Größe. Auch für vorgemerkte Kunden. Schnelle diskrete Bearbeitung u. GÜNSTIGE PREISE.

Wir bieten kompetente Beratung u.Verkauf, gepaart mit 38 - jähriger Erfahrung und kostengünstige Konditionen.

Bei Interesse schreiben Sie uns eine kurze E-Mail an Kreipl-Immobilien@t-online.de (w.Datenschutz) wir melden uns sofort bei Ihnen.





Details:

ObjektNr.: A1059
Objektart.: Wohnung
Angebotsart: Kauf
Nutzungsart: Wohnen

Ort: 85435 Erding

Kaufpreis: 349.000,00 €
Provision: 2,38% Käuferprovision inkl. MwSt. vom VK


Wohnfläche: 100 m²
Zimmer: 3
Unterkellert: JA

Baujahr: 1975
Zentralheizung: Ja
Befeuerung Fern: Ja
Personenfahrstuhl: Ja
Tiefgarage: Ja
KabelSatTV: Ja
Wasch-/Trockenraum: Ja
Energiepass: Verbrauch
Energiepass Gültigkeit: 27.02.2028
Energieverbrauchskennwert: 69.6 kwh/(m2*a)
Energiepass Warmwasser: Ja





Anbieter:
Um diesen Bereich anzuzeigen, muss vorher den Cookies zugestimmt werden:
Cookie-Einstellungen
Kreipl-Kellnberger-Immobilien GmbH


Lange Zeile 26
Erding

Tel.: 08122 / 90 00 90
08122 / 90 01 92
E-Mail senden





Bilder:


Kooperationen


ED-live.de FS-live.de